COR 80 Industrial
Design Overview
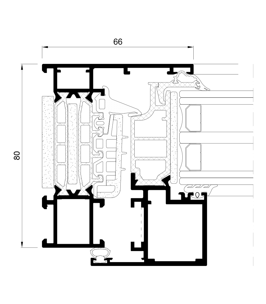
Elegant design with a straight-line aesthetic, in which the sash is concealed behind the frame — maximizing both the glazed surface and the natural light entry. This is complemented by excellent thermal and acoustic performance, driven by a 1.77-inch thermal break (equivalent to 45 mm) and a glazing capacity of up to 2.01 inches (equivalent to 51 mm), which allows for the installation of triple glazing.
Options Available
Technical Specifications
| Glazing | Maximum: 2.01 inches (51 mm) Minimum: 1.42 inches (36 mm) |
|---|---|
| Opening possibilities | Inward opening Side hung Tilt & turn Tilt only Parallel Sliding |
| Outward opening Side hung Top hung |
|
| Sightlines | Frame: 3.15 inches (80 mm) Sash: 3.15 inches (80 mm) |
| Profile thickness | Window profile: 0.075 inches (1.9 mm) |
| Thermal Break (Polyamide Strip Length) | 1.77 inches (45 mm) |
Performance
| Thermal Transmittance (Uw) | As low as 0.71 W/m²K (equivalent to 0.125 BTU/hr·ft²·°F) Maximum weight and dimensions depend on opening type — consult us for specific configurations. |
|---|---|
| Acoustic Insulation | Sound reduction index (Rw) up to 46 dB |
| Air Permeability | According to EN 12207: Class 4 (highest rating) |
| Water Tightness | According to EN 12208: Class E1650 (resistant to 1650 Pa of water pressure — equivalent to a wind-driven rain of approx. 150 km/h / 93 mph) |
| Wind Load Resistance | According to EN 12210: Class C5 (highest structural performance level) |
| Test Reference Dimensions | 48.4 x 58.3 inches (1230 x 1480 mm) – 2 sashes |


